Skip to content

Home Interior at Goregaon in Mumbai

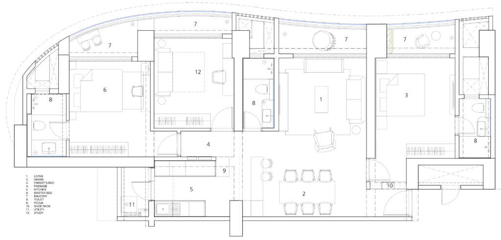
Location: Goregaon Mumbai
Area: 115 sqm
Year: 2021
Services: Interior Design & Build

Mumbai
B302 Nirlep House GD Ambekar Marg Parel
Mumbai 400012, Tel +91 022-35683323
Email: [email protected]

Nashik
04 Abhishikta Sahajeevan Colony Canada Corner
Nashik 422005, Tel +253 2317937 Email for all communication including for jobs: [email protected] 

© StudioBOXX India. All Rights Reserved.